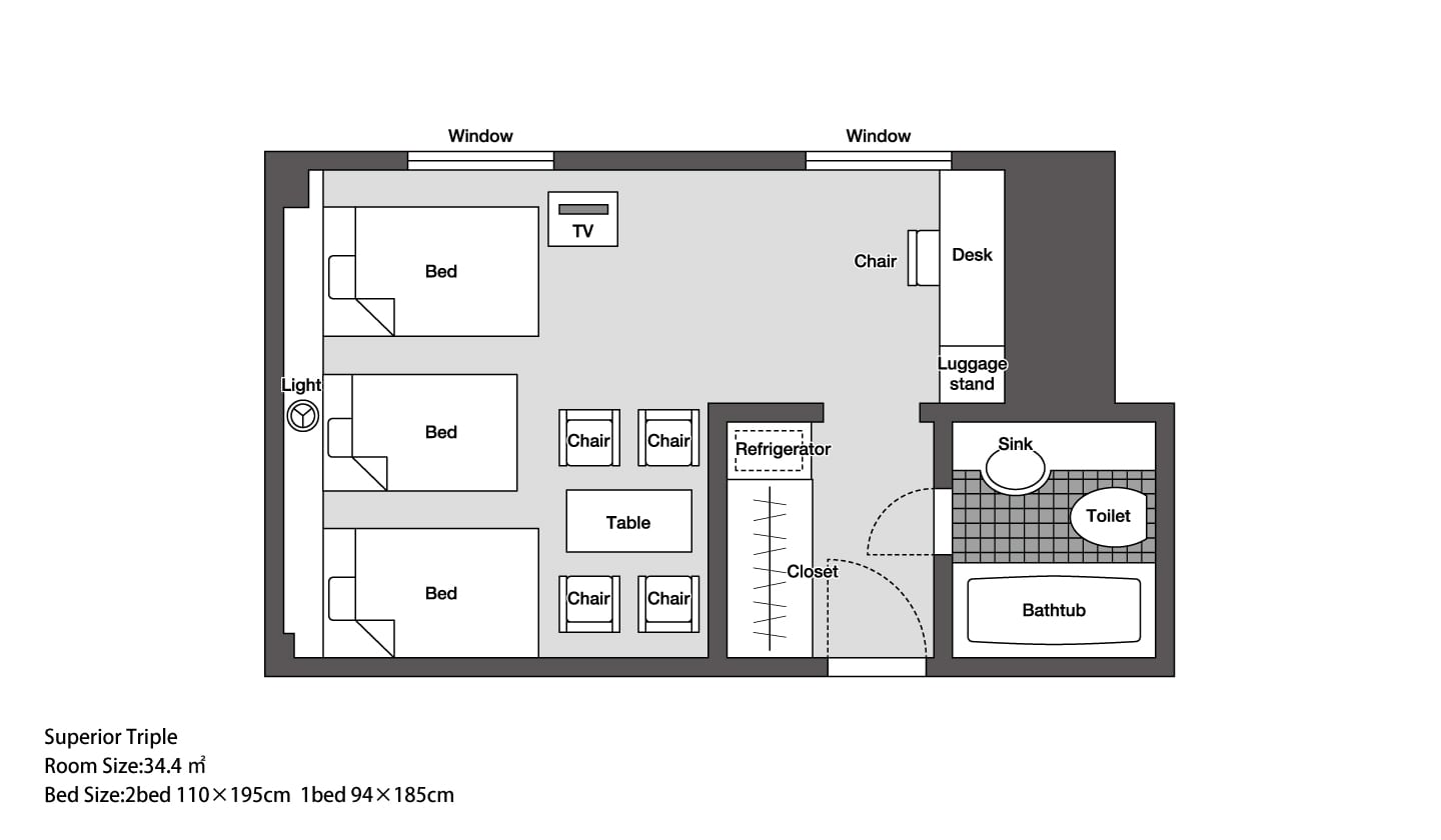
| 広さ | 34.4m² |
|---|---|
| ベッドサイズ | 幅110cm×長さ195cm×2台/ 幅94cm×長さ185cm×1台 幅94cm×長さ185cm×1台(エキストラベッド ) |
| 定員 | 1~4名 |
| 基本室料 | 1名様利用 44,060円 2名様利用 48,190円 3名様利用 52,020円 4名様利用 58,880円 ※表記の料金にはいずれも一泊室料・消費税10%・サービス料10%および宿泊税が含まれます。 |
フロントロビーにてお選びいただけるアイテム
歯ブラシ
ヘアブラシ
カミソリ
コーヒー客室内に設置しているアイテム
シャンプー
ボディーソープ
タオル類
ナイトウェア
スリッパ
ミネラルウォーター※SDGsの推進に積極的に取り組む当社では、使い捨てアイテムの削減に向けて、全直営ホテルの客室内に設置している一部のアイテムの取り扱いを上記の通り変更いたしました。さらなるプラスチックごみ削減の為、お泊りの際には、「歯ブラシ・ヘアブラシ等」使い慣れたお気に入りアイテムをどうぞご持参ください。
Wi-Fi接続
携帯電話充電器
冷蔵庫
加湿機能付き
温水洗浄トイレ
マイナスイオン
電気ポット
ハンガー
消臭スプレー※全客室で、宝塚歌劇専門チャンネル「TAKARAZUKA SKY STAGE」 を無料でお楽しみいただけます。
加湿器
電気スタンド
毛布
ズボンプレッサー
アイロン・台
レンタルパソコン※数に限りがございますので予めご了承ください。

リラクセーション
【受付時間】20:00~26:00
【参考料金】30分 3,300円~
※有料

ランドリーサービス
10:00までに受付の場合
18:00以降の仕上がりでございます。
※有料

宅配便
フロントにお問い合わせください。
※有料

コピー・FAX
フロントにお問い合わせください。
※有料

モーニングコール
お部屋の電話機よりご設定いただけます。
※無料
※客室の画像および間取り図は一例です。部屋によっては、洗面台の位置等、実際と異なる場合がございます。