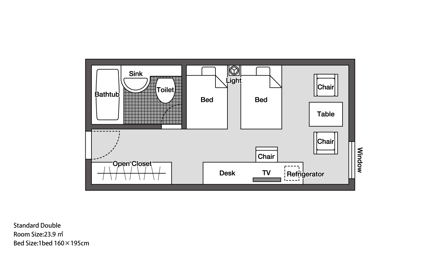
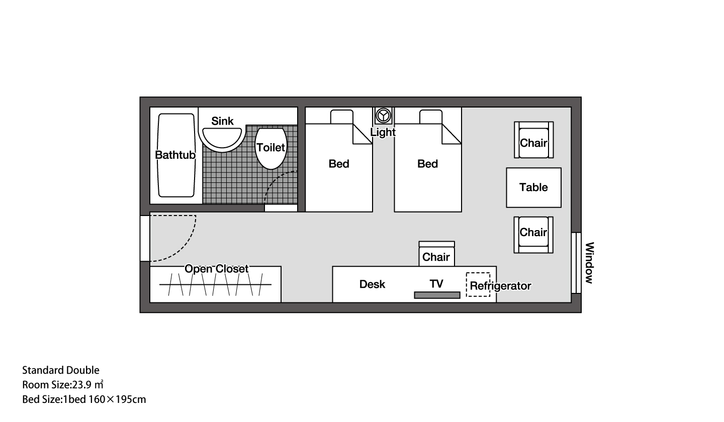
Room size: 22㎡~
Num of rooms: 24
Bed size: 宽 140 × 长 195 cm 1 张
Basic rate:¥28,330~
Credit card: VISA,Mastercard,JCB,AMEX,Diners Club,China Union Pay,Shinhan card,UC,DC,MUFG,APLUS
Digital money: Apple Pay,iD,QUICPay,PiTaPa,Rakuten Edy,WAON,nanaco,ICOCA,Suica,PASMO,Kitaca,tolca,manaca,SUGOCA,nimoca,HAYAKAKEN,Visa payWave,MasterCard®contactless,WeChatPay,Alipay


