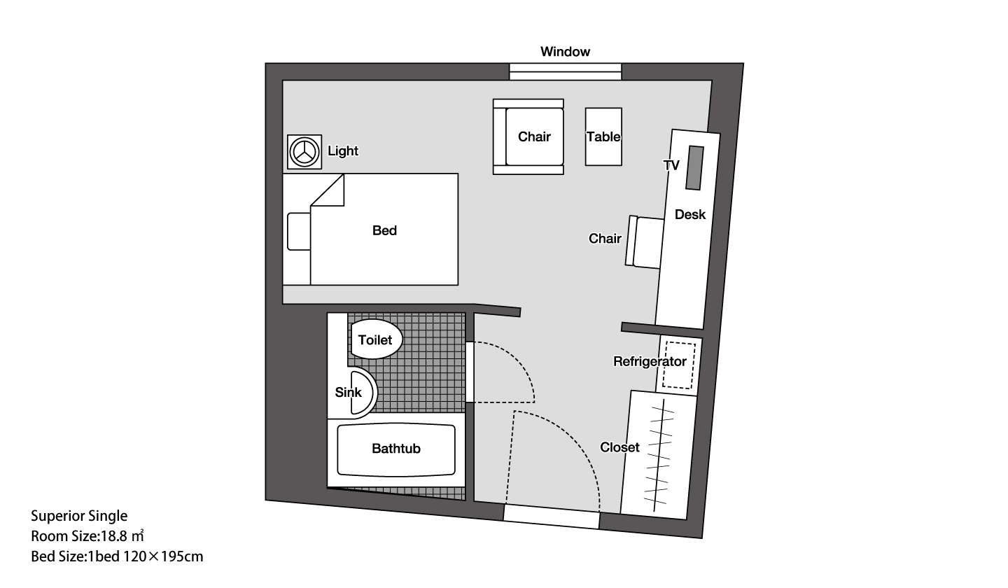
| 広さ | 18.8m² |
|---|---|
| ベッドサイズ | 幅120cm×長さ195cm |
| 定員 | 1名 |
| 一室料金 | 1名様利用 24,500円 ※表記の料金にはいずれも一泊室料・消費税10%・サービス料10%および宿泊税が含まれます。 |
シャンプー
ボディソープ
ボディタオル
シャワーキャップ
カミソリ
ヘアブラシ
歯ブラシ
バスタオル
シャツガウン
紙スリッパ
ミネラルウォーター
VOD
Wi-Fi接続
携帯電話充電器
冷蔵庫
加湿機能付き
温水洗浄トイレ
マイナスイオン
電気ポット
ハンガー
消臭スプレー
加湿器
電気スタンド
毛布
ズボンプレッサー
アイロン・台
レンタルパソコン※数に限りがございますので予めご了承ください。

リラクセーション
【受付時間】20:00~25:30
【参考料金】30分 3,300円~
※有料

ランドリーサービス
10:00までに受付の場合
18:00以降の仕上がりでございます。
※有料

宅配便
フロントにお問い合わせください。
※有料

コピー・FAX
フロントにお問い合わせください。
※有料

モーニングコール
お部屋の電話機よりご設定いただけます。
※無料

新聞
(朝刊)1階フロントカウンターにて販売しております。
(夕刊)1階フロントカウンターにて販売しております。
※有料